Bouwnummer 15, eengezinswoning
gbo circa 144 m2
perceel circa 118 m2 - voor en achtertuin + berging + mandelige steeg
Optie koop vaste prive parkeerplek
Prijs: € 545.000,- V.O.N. MONDELING VERKOCHT
Bouwnummer 15 heeft een tuitgevel, met daarachter de ruimtelijk dwarskap. De gevel verspringt iets ten opzichte van de buren, ten gunste van de privacy.
De Tuin der Nederlanden in Zaandam is een goed verborgen plek in Zaandam. Waar groen en rust overheersen en de tijd lijkt te hebben stilgestaan. De stad is om deze oase aan een dwarspad tussen de Oostzijde en Taanmanstraat heengegroeid en liet dit idyllische plekje ongemoeid. De oude glorie van een herensociëteit uit de eerste helft van de negentiende eeuw wordt hier hervonden in de bouw van acht herenhuizen. Uitkijkend over een binnentuin, gesitueerd in een groen en sfeervol hof temidden van de stad.
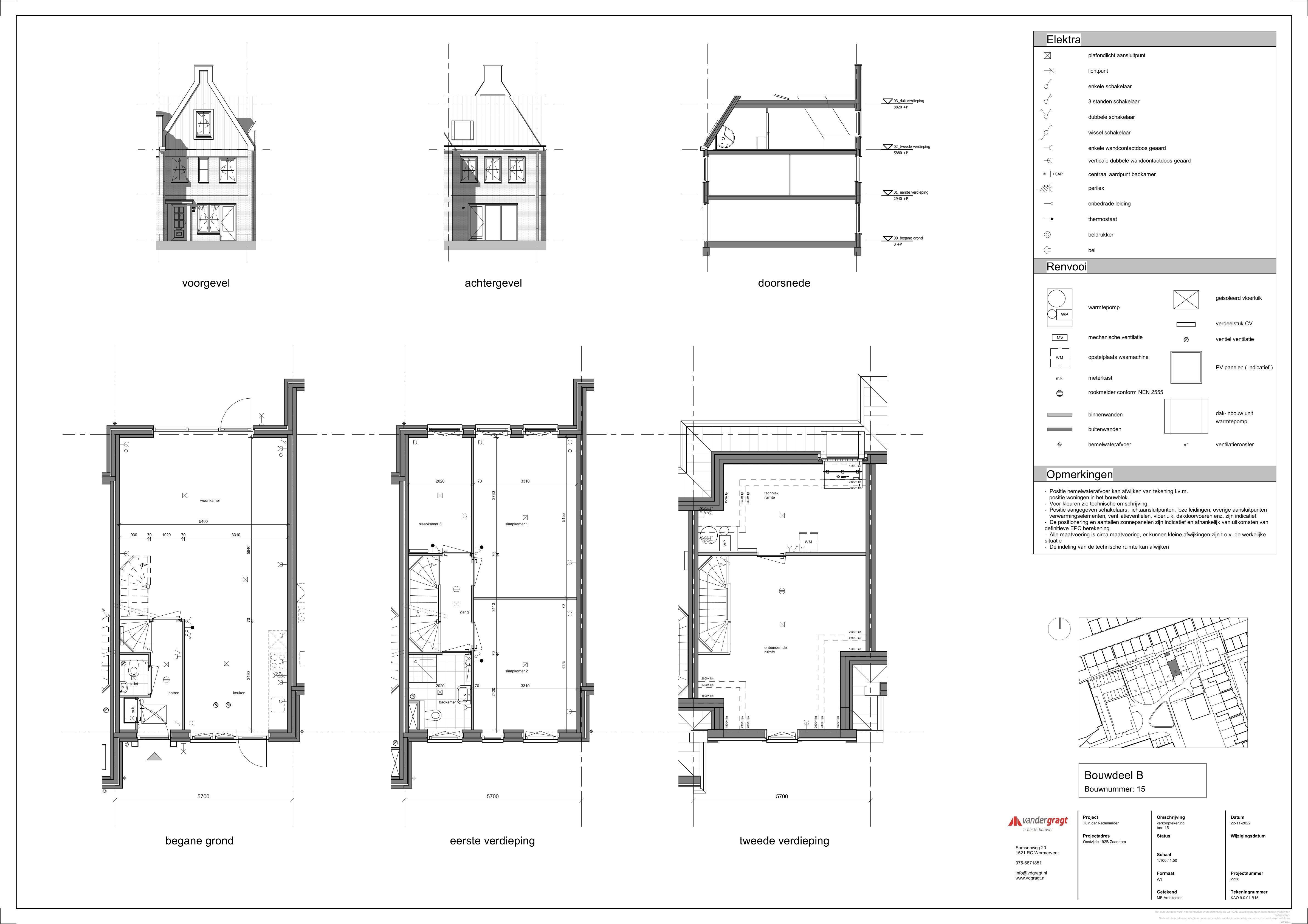
Plattegronden
Indeling:
Begane grond: imposante entree via omlijst portiek. Hal met kruipluik en meterkast. Betegelde toiletruimte met wandcloset en fontein van Villeroy & Boch. Trapopgang. Royale woonkamer. Grote raampartij met openslaande deur naar achtertuin. Aan de voorzijde wordt de halfopen casco opgeleverde keuken, inclusief afgedopt leidingwerk, gesitueerd met zicht op de hof. Openslaande deur naar de voortuin.
Eerste verdieping: overloop met vaste trap naar tweede verdieping. Betegelde badkamer met inloopdouche, wastafel en tweede toilet (wandcloset) van Villeroy & Boch. Drie slaapkamers, waarvan de twee grootste respectievelijk circa 14 en 17 vierkante meter meten!
Tweede verdieping: zoldervertrek met gevelraam, mogelijkheid werk- of hobbyruimte of vierde slaapkamer. Gesloten berging annex technische en facilitaire ruimte met opstelling (lucht-)warmtepomp met warmte-terug-wininstallatie, aansluitingen wasmachine en -droger. Royale bergruimte.
Impressies
Bijzonderheden:
- klassieke elementen als geroede ruiten en tuitgevel;
- openslaande deuren naar voor- en op het zuiden gelegen achtertuin;
- badkamer en toiletruimte ingericht met Villeroy & Boch sanitair;
- elektrisch koken en verwarmen via warmtepomp en WTW: energielabel A+++;
- drie slaapkamers plus riant zoldervertrek als eventuele werkplek met zicht op het hof;
- dichtbij stadscentrum, stadspark, school, station en snelweg.







