Home
De woningen
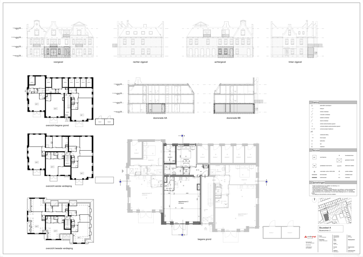
De 8 herenhuizen
De Societeit
De Kapberg
De makelaar
De bouwer
De locatie
De geschiedenis
Contact
Welkom Wonen In Zaandam
TND13 ptg